1071 Budapest, Rottenbiller utca 47.
284 m2 - 285 m2
| 600€/HÓ

+ 3 kép
Alaprajzok

+ 1 kép
Ingatlan Leírása
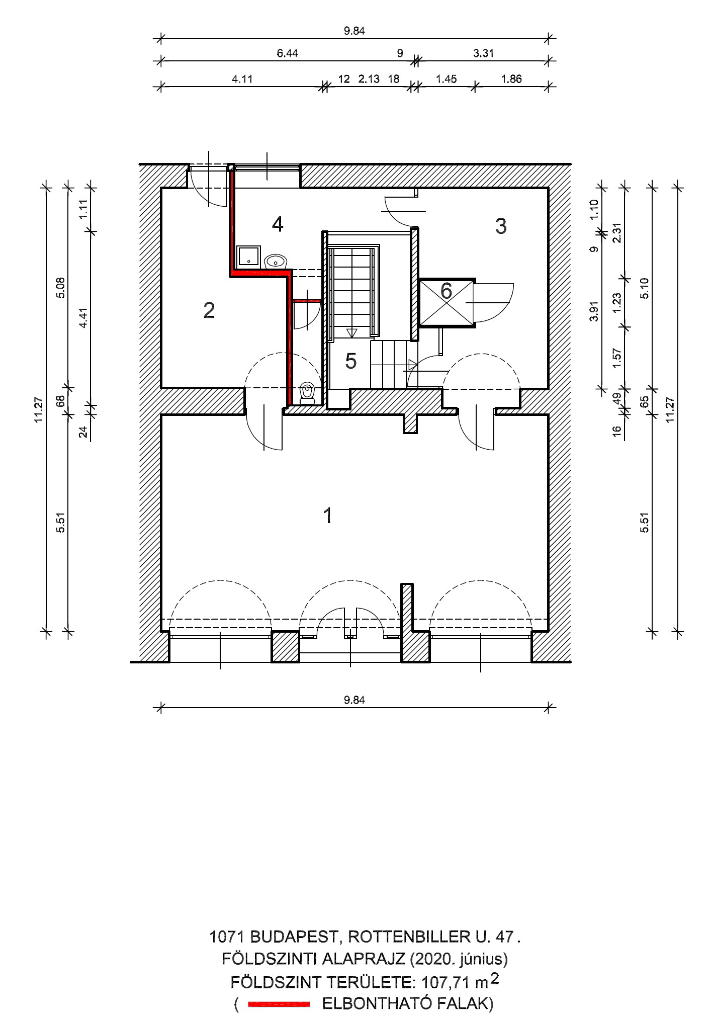
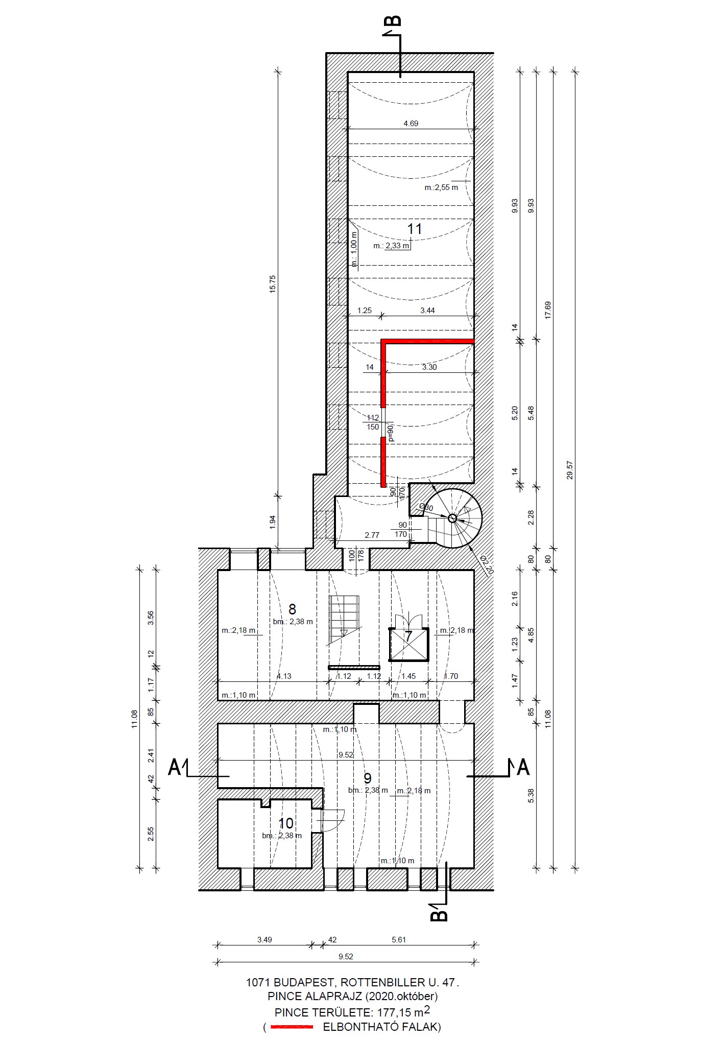
Az üzlethelyiség a VII. kerületben a Király utca és a Damjanich utca közötti szakaszon helyezkedik el. Két elkülönülő bejárati ajtóval, saját vizesblokkal, belső udvarra nyíló raktárhelyiséggel és tágas pincével rendelkezik. Az üzlet 107,71 m2, a pince 177,15 m2. Tömegközlekedéssel, gyalogosan és gépkocsival is könnyen megközelíthető.
A helyiség alkalmas szolgáltatás és kereskedelmi tevékenység működtetésére.
Bérelhető: megbeszélés alapján
(Üzemben tartási költség: 136.853 HUF/hó+Áfa)